AvisБТИ 1.5.210100
AvisБТИ – профессиональное построение чертежей и отчетов для технической инвентаризации объектов недвижимости (БТИ).
Основные возможности программы:
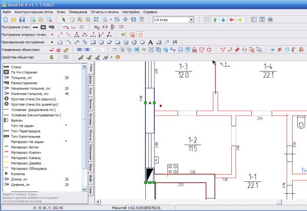
• Создание поэтажных планов объектов недвижимости.
• Создание схемы земельного участка условными знаками 1:500 масштаба.
• Построение с помощью привычных конструкций: стены, двери, окна и др.
• Построение с помощью базовых фигур.
• Построение визуальное на плане или путем точных замеров.
• Автоматическое распознавание помещений, промеров, формул площадей.
• Простое создание меток и подписей.
• Печать планов и схем.
• Формирование отчетов (журналов и экспликации) в соответствии с украинским законодательством.
• Импорт проектов, подготовленных в других чертежных программах.
• Импорт сканированных изображений для использования в качестве подложки.
• Готовая библиотека объектов построения (стены двери, окна, колонны, сантехника, вентиляция, проемы, лестницы, лифты и т.д.)
• Библиотека условных знаков элементов абриса 1:500 масштаба
Быстро, правильно и просто создать технический отчет и инвентаризационное дело – основная цель программы. Рисуя схему участка или поэтажные план, вы сразу получаете и все ведомости. Полное соответствие украинскому законодательству.
Что нового в версии 1.5.210100
1) Ускорение запуска программы
2) Добавлено: Отображение толщины стены в Инфо и возможность вынести ее как метку на план
3) Добавлено: Внемасштабный режим: стены и проемы синим цветом
4) Добавлено: В структуре слоя (список объектов) отображение угодий
5) Добавлено: Проставить промеры для выделенных помещений
6) Добавлено: В настройках: Увеличенный шрифт для форм
7) Добавлено: Копирование/Вставка материалов (характеристик) объекта
8) Добавлено: Поле Сортировка (вкладка Инфо) для упорядочив
|
Оценить:
|
Лицензия: условно-бесплатная |
|---|---|
| Оценка: | 1 из 5 (оценок: 1) |
| Размер файла: | 34 Мб () |
| Операционные системы: | Windows 7, Windows XP, Windows Vista, Windows 9x |
| Язык: | русский |
| Добавил(а): | stargis |
| Добавлена: | |
| Закачек / Просмотров: | 4 275 / 13 689 |
| Обновлена: | |
На вопросы отвечает Светлана Шумилова
- Как давно у вас появилась идея создать AvisБТИ, и что не устраивало вас в существующих аналогичных программных продуктах?
- С 2013 года в Украине разрешили деятельность частных БТИ, которые привыкли идти на встречу заказчику и делать услуги быстро и качественно. Кроме того, с 2013г. поменялось законодательство в плане оформления технических паспортов по инвентаризации. Государственные БТИ чаще всего чертили вручную. Из программ на рынке имелись только адаптированные автокадовские программы (AutoCAD, PlanTracer). Но оказались, что эти программы частично решают проблему построения чертежа, а тем более автоматического создания отчетов, они стоили слишком дорого, они требовали адаптации под украинское законодательство, проблемы возникали также с поддержкой и с обучением. Поэтому мы и решили создать продукт, который бы позволил быстро и легко строить планы, автоматически готовить все необходимые журналы. Также мы могли обеспечить должный уровень поддержки и обучения (есть опыт).
- Почему AvisБТИ получило такое название? Что оно означает?
- От названия ядра Avismap, на базе которого сделала программа. Ядро покупалось у китайских разработчиков.
- На каком языке программирования написана ваша программа, и почему вы выбрали именно этот язык?
- На дельфи. С дельфи работаем давно, много наработок, опыта
- Сколько человек занято разработкой AvisБТИ?
- 3 человека
- Расскажите, пожалуйста, о себе, и(или) о людях, которые занимались разработкой программы.. Где вы родились, учились? Как давно занимаетесь программированием?
- У меня высшее образование по специальности экономическая кибернетика. Программирую с 2000 года. Владею разными языками (си, делфи, бейсик), платформами (виндоус, линукс), программирую под веб. Опыт и знания дают возможность решить практически любую задачу. Также у нас есть партнеры, которые непосредственно работают на наших программах, другие следят за законодательством и нормативно-правовой базой. Мы сотрудничаем и с частными предприятиями и с госучреждениями, и с отдельными лицами. Также мы установили дружеские отношения со всеми нашими заказчиками, поэтому часто от них поступают предложения по доработкам, ошибкам, нестандартным случаям.
- Есть ли у вас хобби. Если да, то какое?
- У меня хобби фотография и активный отдых
- Занимаетесь ли спортом? Если да, то каким?
- 7 лет занимаюсь бегом
- Большинство пользователей вашей программы - граждане бывшего СССР или больше иностранцев? На кого в большей степени рассчитана ваша программа?
- Наша программа пока строго ориентирована на Украину ввиду специфичности законодательства каждой страны. При содействии программу можно адаптировать для правильной работы в любой стране СНГ. Другие страны в этом проекте мы не рассматриваем, т.к. у них кажется нет такого понятия как инвентаризация.
- Плата денег - единственная возможность получить лицензию на вашу программу? Существуют ли безденежные законные пути, например перевод программы на другой язык или что-то подобное?
- У нас имеется демо-версия программы, которая в полной мере работает 60 дней. Бесплатно копия программа передается нашим представителям и дилерам. Другой легальный вариант бесплатной версии — предоставление для учебных заведений.
- Проводите ли вы какие-либо конкурсы или акции, приняв участие в которых, пользователь может рассчитывать на лицензию? Если нет, то планируется ли что-то подобное в будущем?
- У нас есть скидки на покупку при приобретении более 5 копий, 10 и тому подобное. Также мы иногда проводим акции, когда можно также получить скидки.
- Как вы нашли наш сайт?
- по поиску
- Что вам нравится и не нравится в нашем ресурсе. Чего по Вашему мнению нам не хватает?
- Ваш сайт я нашла только по запросу «добавить программу», хотя теоретически хотелось бы вас видеть в поиске по «скачать программу», ведь именно так ищут пользователи. Понравилась идея интервью, нигде такого не встречала, хотя и не знаю на что это повлияет. Понравилось еще, что есть много важной информации о каждой программе и скачивание с оригинальных ресурсов.
- Что нам следует ожидать в будущих версиях AvisБТИ?
- Добавим отчеты по всем видам объектов недвижимости (их 2 осталось). В процессе распространения и обучения новых пользователей сразу видно какие функции не вполне очевидны, чего не хватает, в новых версиях мы учитываем все эти замечания.







